Новая серия твердотопливных низкотемпературных стальных водогрейных котлов, работающих на щепе и предназначенных для теплоснабжения зданий и сооружений , оборудованных открытыми или закрытыми системами отопления с естественной или принудительной циркуляцией теплоносителя.
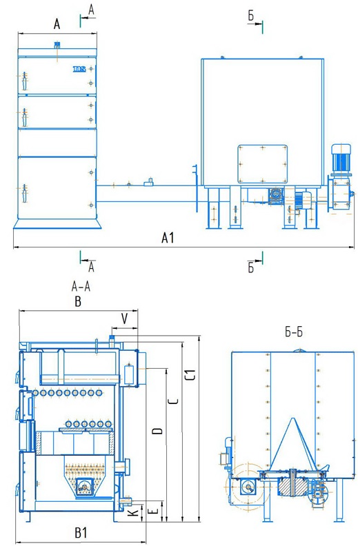
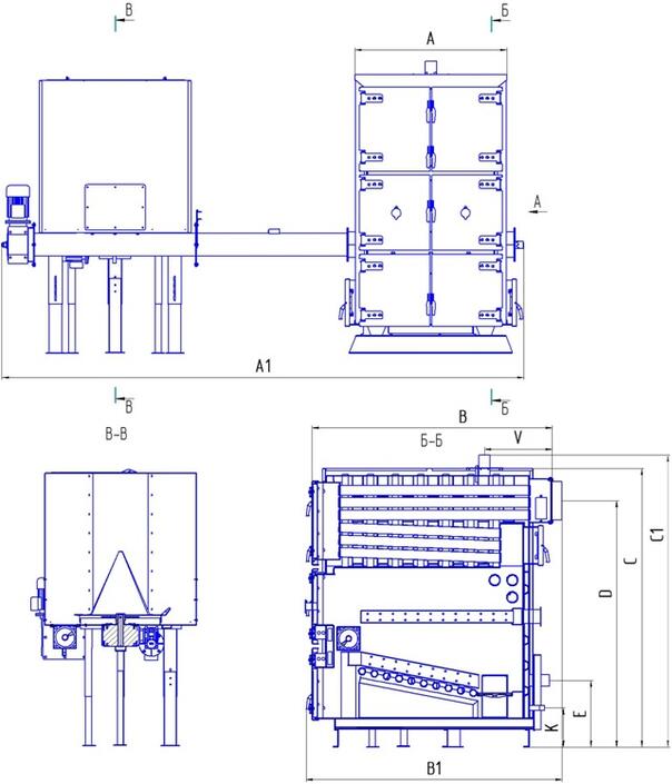
Схематическая компоновка котлов TIS HARD BIO

Модельный ряд серии включает :
- котлы серии TIS HARD BIO 150 (45-150 кВт) (Инструкция)
- котлы серии TIS HARD BIO мощностью 300, 400 и 500 кВт (Инструкция)
Технические характеристики котла TIS HARD BIO 150:
|
||||||||||||||||||||||||||||||||||||||||||||||||||||||||||||||||||||||||||||||||||||||||||
![]() |
||||||||||||||||||||||||||||||||||||||||||||||||||||||||||||||||||||||||||||||||||||||||||
Технические характеристики котла TIS HARD BIO 300-500:
|
|||||||||||||||||||||||||||||||||||||||||||||||||||||||||||||||||||||||||||||||||||||||||||||||||||||||||||||||||||||||||||||||||||||||||||||||||||||||||||
Котел поставляется в комплектации, обеспечивающей полную готовность к работе после осуществления монтажа.
Комплектация:
- корпус котла;
- топливный бункер с ворошителем и подающим устройством;
- автоматический блок управления TIS TRONIC 660HD с кабелями и датчиками;
- кочегарный инструмент;
- инструкции по эксплуатации;
Автоматика TIS TRONIC 660HD сочетает в себе следующие функции:
- Управление вентиляторами котла;
- Управление подающим устройством котла;
- Управление циркуляционными насосами контуров котла и системы отопления;
- Контроль температуры отходящих газов;
- Защита от закипания.
- Возможность подключения комнатного терморегулятора и интернет модуля TIS TRONIC 520.
Розжиг котла осуществляется вручную. После розжига работой котла управляет автоматика, подающая сигналы на вентиляторы и привод шнека топливного тоннеля. Периодически производится продувка топки от скоплений горючих газов. Алгоритм управления обеспечивает оптимальное соотношение количества топлива и подаваемого воздуха для обеспечения горения с высоким КПД и поддержание заданной температуры теплоносителя.
Надежная система безопасности (термоводяная защита с датчиком контроля температуры топливопровода) защищает котел от возгорания топлива в системе автоподачи.
В качестве топлива используется древесная щепа со следующими параметрами:
| Расчетный вид топлива, теплота сгорания | МДж/кг (ккал/кг) | Древесная щепа 10,2 (2438) | ||
Гарантия на корпус котла составляет 5 лет.
Заказать котлы или получить консультацию Вы можете в наших отделах продаж:




